
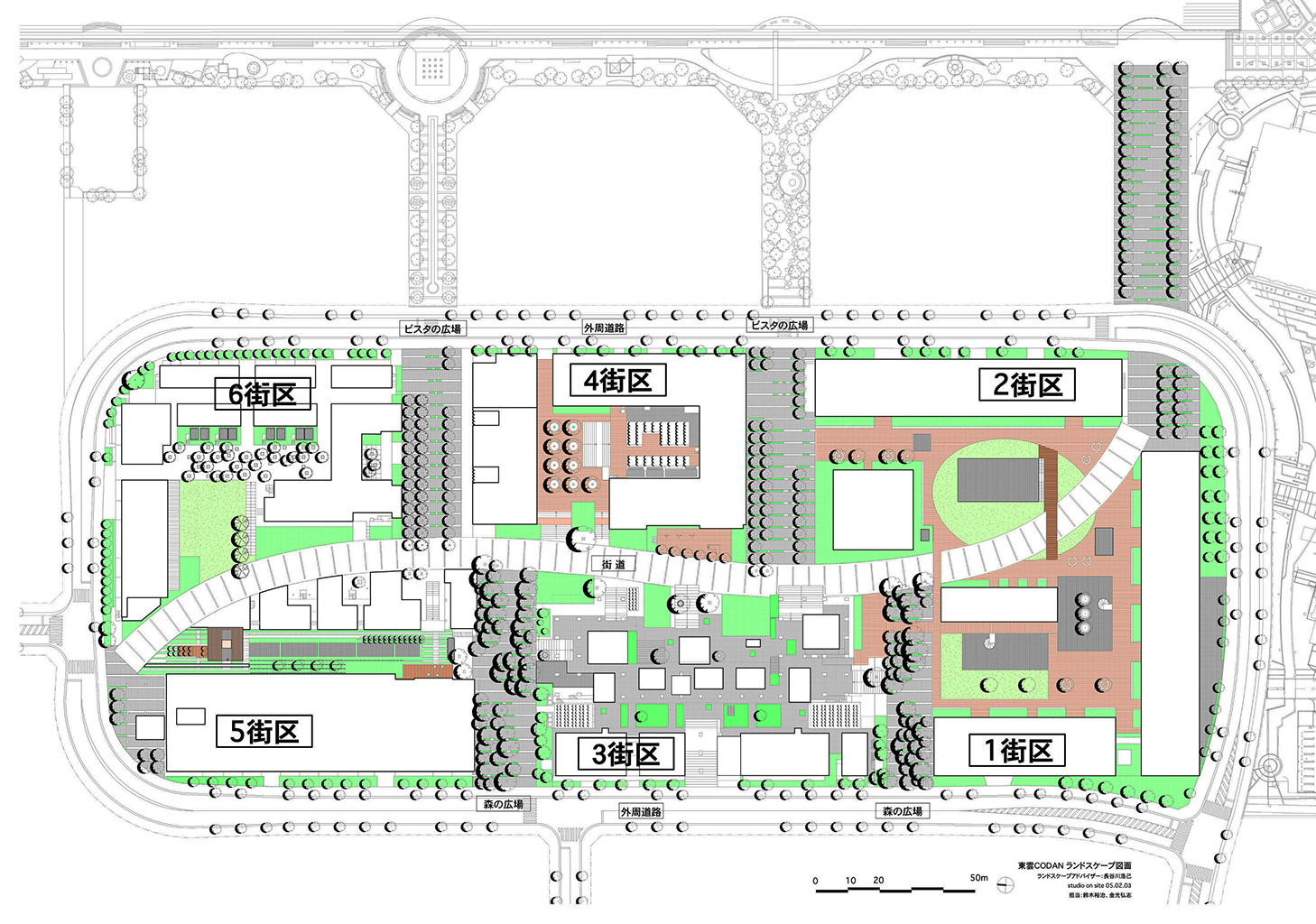
先ず我々が用意したのが、なるべくシンプルな考え方、シンプルなボキャブラリー、限定された素材である。例えば大きなかたち(街の基本骨格)はS字にうねる街道、そこに接続する6本のリニアな広場からなっている。これらは全てコネクタと呼ばれる回遊型広場であり、そこに6つの街区の中庭がさらに接続することによって東雲の街路空間が形成され、立体的で行き止まりのない回遊が実現する。この他いくつかの基本的な考え方や方向性、ボキャブラリーを提案し、それらの材料 (または種子)が各街区の建築家、サインや照明など多くのデザイナーの意志と反 応し、結果として場所ごとに様々な状況が浮かび上がってくる。その集積がここの 風景であり、求めたものはシンプルであり、かつ同時に多様な街の表情である。























Data

東雲キャナルコート CODAN
Shinonome canal court CODAN Landscape Design
| 竣工 | 2005年 |
|---|---|
| 規模 | 164,300㎡ |
| 住所 | 東京都江東区 |
| 業務内容 | 基本計画、基本設計、実施設計監修、設計監理 |
| 施主 | 都市再生機構 |
| 協働 | 建築:一街区・山本理顕設計工場、二街区・伊東豊雄建築設計事務所、三街区・隈研吾建築都市設計事務所、四街区・山設計工房、五街区・ADH/ワークステーション、六街区・スタジオ建築計画/山本・堀アーキテクツ サイン:廣村オフィス 照明:近田 玲子 写真:吉田 誠 |
| 担当 | 長谷川 浩己、鈴木 裕治、金光 弘志、武田 史郎(元所員)、廣松 奈美子(元所員) |
| 受賞歴 | 2005年グッドデザイン金賞(特別賞)、BCS特別賞 |

